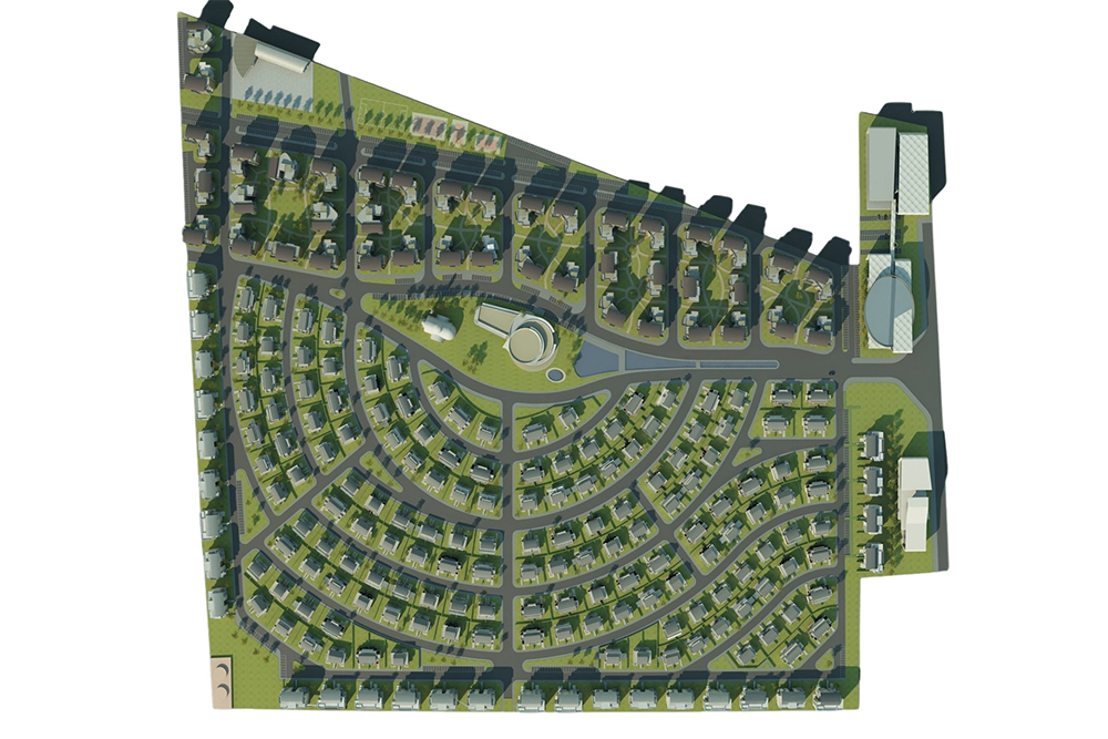
La începutul acestui an, compania a dat startul vânzărilor în două proiecte rezidențiale „verzi", în care un lot de casă poate fi cumpărat începând cu 8.500 de euro.
Având un portofoliu de terenuri de peste 550 de hectare, localizate preponderent în zona Capitalei și cu o valoare cumulată estimată în prezent la 80 de milioane de euro, investitorul și dezvoltatorul imobiliar Asset Management Corporation (AmCorp) se află în continuare în căutarea unor oportunități de achiziție pe segmentul de land banking. Proprietățile vizate pot prezenta potențial de dezvoltare pe segmentul rezidențial, industrial-logistic, de retail, dar și al agrementului și ospitalității, al energiei regenerabile sau chiar al agriculturii. Investițiile în terenuri ale AmCorp pot avea ca finalitate dezvoltarea unor viitoare proiecte proprii, încheierea unor parteneriate cu alți dezvoltatori sau investitori sau chiar revânzarea, în timp, a proprietăților – presupunând, desigur, că reprezentanții companiei vor primi oferte competitive în acest sens.
„Avem deja un portofoliu generos de terenuri, însă credem că oportunități atractive de investiție sunt încă disponibile, atât în interiorul Bucureștiului, cât și în zonele limitrofe ale orașului. Ne interesează atât proprietățile de mari dimensiuni, obținute prin comasarea mai multor parcele de teren sau prin dezafectarea uor vechi fabrici, cât și cele de dimensiuni mai mici, dar cu un amplasament favorabil. Intenționăm să ne continuăm în ritm alert dezvoltarea pe piața locală și acordăm o atenție atât de mare componentei de land banking pentru că terenul reprezintă piatra de temelie a oricărui proiect de succes – atât în domeniul imobiliar, cât și în celelalte sectoare în care activăm, precum cel al ospitalității, al energiei sau al agriculturii.”

Maria Iancu, Head of Business Development AmCorp
Concomitent cu identificarea – și valorificarea - unor noi oportunități de investiție în terenuri, reprezentanții AmCorp intenționează și să deschidă discuții cu diferite bănci active pe piața locală, pentru cofinanțarea acelor proiecte aflate într-un stadiu avansat de planificare și care vor fi considerate prioritare în calendarul de dezvoltări al companiei. La începutul acestui an, compania a anunțat, de altfel, demararea vânzărilor pentru două ansambluri rezidențiale „verzi” din portofoliul său de proiecte proprii, ce urmează a fi dezvoltate sub brandul Sol Residences. Cu o valoare investițională cumulată estimată la circa 41 de milioane de euro, acestea sunt amplasate în două localități de interes din zona metropolitană a Capitalei, respectiv Crevedia și Domnești, și oferă posibilitatea achiziționării de loturi de casă, la prețuri ce pornesc de la 8.500 de euro și suprafețe de la 300 de metri pătrați.
Dincolo de ansamblurile rezidențiale, creionate în baza unei viziuni de dezvoltare integrate, o altă direcție de valorificare a portofoliului de terenuri este cea a proiectelor de energie regenerabilă, prin brandul Everready. Pe acest segment de piață, compania are în dezvoltare o serie de proiecte în zona Munteniei, la o distanță de maximum 80 de km de Capitală. Și proiectele Sol Residences integrează, de altfel, surse de energie regenerabilă: ansamblul din Crevedia, spre exemplu, ce va cuprinde un total de 340 de loturi de casă, plus peste 2.700 de apartamente, va fi alimentat cu energie verde de la un parc fotovoltaic dezvoltat tot de către companie, chiar vizavi de complex, sub brandul Everready.
„Cu toții suntem conștienți că reducerea consumului de energie și protejarea mediului înconjurător reprezintă una dintre marile priorități ale momentului, atât la nivel global, cât și pe plan local. Pe măsură ce înșiși consumatorii finali devin tot mai interesați de acest aspect, din ce în ce mai multe companii se arată dornice să investească în domeniul energiei regenerabile, iar AmCorp vine în întâmpinarea nevoilor acestora din urmă cu o vastă gamă de competențe în ceea ce privește dezvoltarea, dar și întreținerea și administrarea de parcuri fotovoltaice, proiecte de cogenerare, facilități de stocare a energiei și stații de alimentare pentru perioade de vârf. Aceste competențe sunt o parte integrantă din serviciile specializate de consultanță, planificare și management (în construcții, dar și al proprietăților) oferite de compania noastră.”
Maria Iancu, Head of Business Development AmCorp
Nu în ultimul rând, reprezentanții AmCorp sunt deschiși la noi oportunități de dezvoltare, pe cont propriu sau în diverse forme de parteneriat, a unor proiecte de impact în domeniul agrementului și ospitalității. „Cartea de vizită” a companiei pe acest segment este Divertiland Water Park, amplasat în zona de vest a Capitalei – unul dintre cele mai mari parcuri acvatice din Europa de Est, proiectat pentru a fi alimentat, în mod preponderent, cu ajutorul energiei solare. Lansat în anul 2012, acesta avea inițial o suprafață de 72.000 de metri pătrați, însă a fost extins în 2016 până la 100.000 de metri pătrați, atrăgând în fiecare an în jur de 150.000 de vizitatori/sezon. Divertiland Water Park a devenit, în timp, una dintre destinațiile de relaxare favorite ale bucureștenilor pe timp de vară, dar și un cadru pretabil pentru organizarea unor diverse tipuri de evenimente.


